Habitaflex is a factory-built innovative solution to temporary and permanent accommodation, this home can be unfolded, transported and relocated. Its rapid and easy installation can get this home up and running in a few hours only! Thanks to its clever opening mechanism, Habitaflex deploys virtually effortlessly and, in no time, reveals a complete and comfortable home comprising: a kitchen, living room, bathroom as well as 1, 2 or 3 bedrooms. Its plumbing and heating systems are fully integrated in the wall cavities so you can be operational and stay in your new home the very same day of your installation!



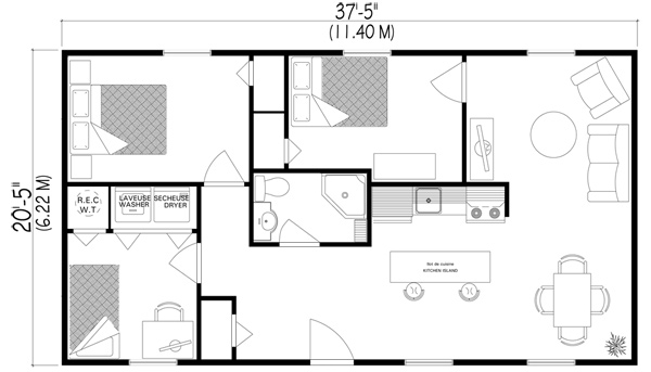
The way it operates is pretty well thought out. Bathrooms and kitchens are included, along with cabinets, countertops, and fixtures such as toilet, sinks, shower, and range hood. Even phone and cable jacks are included, but some models at least don’t appear to be intended for permanent habitation. The model in the photos is 768 square feet with three bedrooms.
These homes are small enough and light enough that they can be towed with a heavy duty pick-up truck or SUV. They’re already wired, plumbed, insulated, and finished inside and out.


Range of models to cover all quick building demands and conditions are available and they range from housing, dormitories and kitchens to large camps, sanitary units and laundry facilities.
Models are designed to be functional and comfortable, striking the perfect balance between modern commodities and liveability. The use of interior space pleasantly surprises, with high ceilings to enhance room sizes and wood-panelling effect to contribute to a sense of warmth and comfort. Our models also offer the following features:
Models also offer following features:
Built with structural insulated panels
Expanded polystyrene insulation without CFCs
Rustic-grooved board finish on exterior walls (choice of colours)
Oven-dried wood carpentry
Pre-painted galvanized steel roofing
White PVC sliding windows
Insulated steel door
Independent electrical heat system in every room
One cable / phone jack outlet room
Toilet, sink, bath or shower (32in x 32in)
Quick-connect water inlet
1/2in (12.7mm) Pex water lines and ABS drainage piping
Mining camps and field crew accommodation
Quick-building modules
Habitaflex can provide quick-building modules for all circumstances. As well as industry accommodation, company provides anything from residential units in resort-style environments, cabins in the bush, a cottage in the country, gallery in a jamboree, accommodation for executive or field’s crew, or a social alternative to people seeking refuge due to extreme circumstances.
For more details visit: http://www.habitaflex.com/